9 am to 5 pm

Monday to Friday

5624 Princeton Avenue

Columbus, GA 31904

(706) 321-1111

Call Today!

Compare Listings

Spectacular Lakefront Views on Lake Harding

$834,900

Description

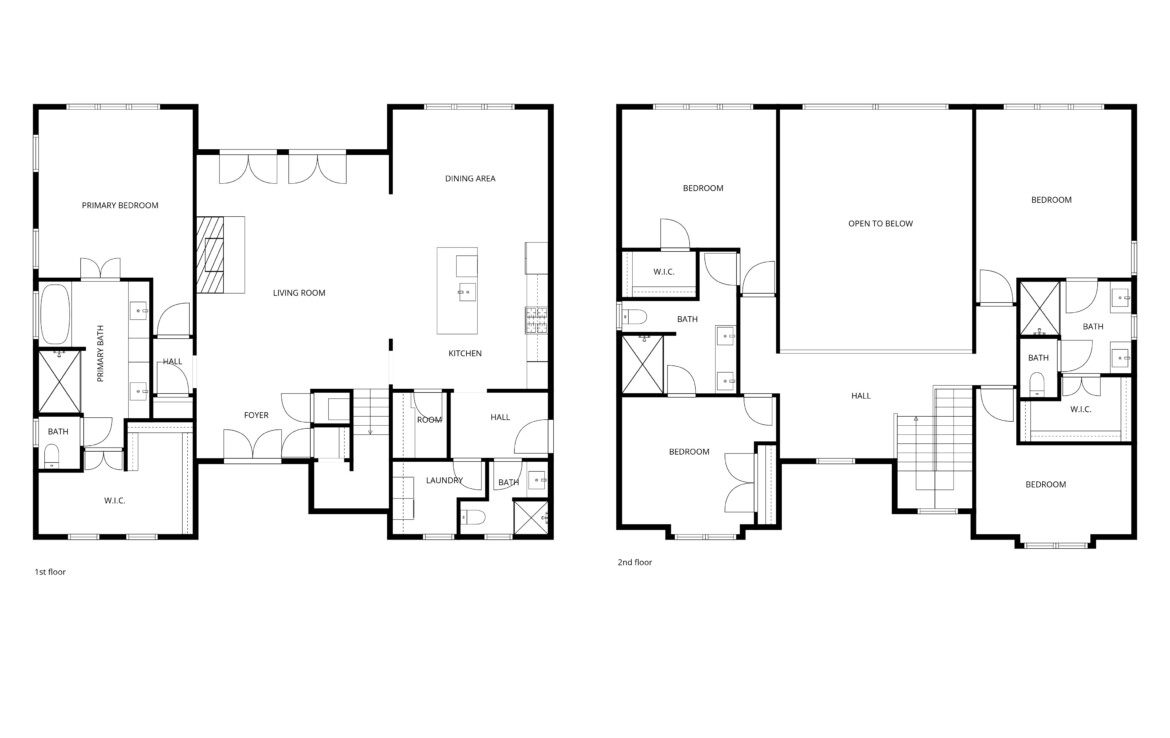
Spectacular lakefront home on Lake Harding with 176 feet of waterfrontage and private dock! This newer construction home offers breathtaking views and a thoughtfully designed open floor plan perfect for everyday living and entertaining. Double wood front doors welcome you into a spacious interior featuring two-story ceilings, 8-foot doors, and custom wood moldings throughout. The main-level luxury primary suite includes a walk-in closet with built-ins, soaking tub, oversized fully tiled shower with pebble stone flooring, and double vanities. The chef’s kitchen is equipped with white Carrara quartz countertops, a large island with farmhouse sink, under-counter mounted microwave, stainless steel appliances, gas cooktop, and double ovens. The kitchen flows seamlessly into the main living area and opens to double French doors leading to a covered deck overlooking the lake. Upstairs, a loft area with lake views offers the perfect space for a reading nook or office, and the bonus room provides flexibility for a gym, playroom, craft room, or additional living space. Additional features include LVP flooring throughout main living areas and bedrooms, Carrara tile in bathrooms, wood-burning fireplace, foam insulation for energy efficiency, architectural shingles, and an attached double carport with additional parking pad. Enjoy lake living at its finest with stunning views with modern finishes nestled at the water’s edge.

Experience year-round full pool levels on Georgia Power’s Lake Harding—just under 1.5 hours south of the Atlanta airport for an easy weekend escape. Even during drought conditions, full lake levels are maintained

Address

  • Address: 1077 LEE ROAD 370
  • City: Valley
  • State/county: AL
  • Zip/Postal Code: 36854
  • Neighborhood: LAKE HARDING
  • Country: United States

Detail

Updated on April 28, 2026 at 11:42 am

  • Price: $834,900
  • Property Size: 3261 sq ft
  • Land Area: .5
  • Bedrooms: 4
  • Bathrooms: 3.5
  • Year Built: 2022

Video

360° Virtual Tour

https://vimeo.com/1184843277?share=copy&fl=sv&fe=ci